€ 690.000
IMMOBILE ARTIGIANALE 3 ACCESSI CARRALI

Rif: N Meda 690
  • 20 Foto
  • 1 Planimetrie
  • Mappa
  • Video

Descrizione

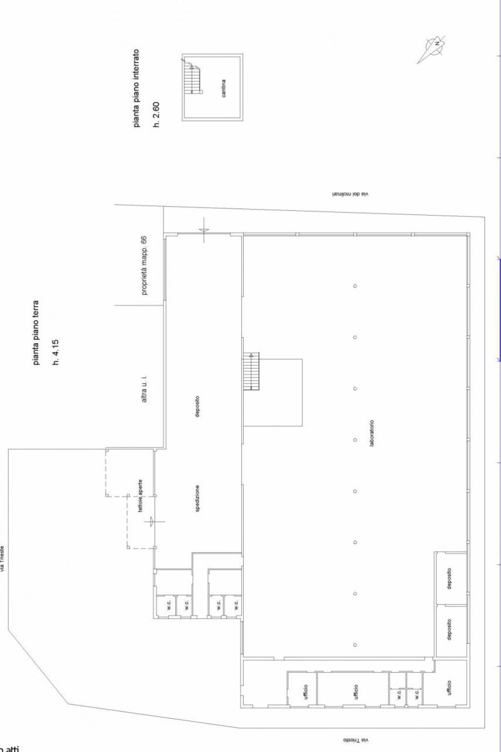
PRODUTTIVO di mq 1250 + interrato ma 150 + UFFICI mq 107 + AREA EST mq 580 con 3 ingressi carrelli. Tetto e impianti nuovi del 2003. PT con ampio spazio produttivo, una porzione ad uffici e locali accessori (wc, spogliatoi, etc. ), e da uno spazio a deposito al piano interrato di circa 100 mq, raggiungibile direttamente dal locale produttivo da una scala interna. Completano la dotazione un'area di pertinenza sul fronte principale, ed un camminamento perimetrale sui lati non occupati dal fabbricato residenziale in aderenza. L'accesso principale avviene dalla via dell'artigianato 49-51 (erroneamente è indicato via Trieste 51), tuttavia c'è un ulteriore accesso secondario dalla via dei Molinari. Di fatto l'area su cui sorge l'immobile ha ben tre affacci su strade comunali pubbliche (angolo via dell'artigianato e via dei Molinari). Il corpo principale (laboratorio) è a doppia campata con copertura a falda a capanna in lamiera grecata, struttura principale in ferro (con probabili elementi in c. a. p. ), tamponamenti in muratura e finestrature a nastro. Una controsoffittatura in pannelli in lana minerale nella parte a laboratorio non ha consentito di verificare la tipologia costruttiva della struttura di copertura. Il corpo addossato destinato ad uffici è, invece, completamente in muratura. Le pavimentazioni sono in piastrelle di gres/klinker per il laboratorio e ceramica per la parte uffici. L'area di pertinenza esterna è in battuto di cls, e risulta delimitata da una recinzione di proprietà costituita da un muretto in cls e una barriera in metallo verniciato. Info e Vendite IndustriaRE 3478160766.

Richiedi maggiori informazioni

Autorizzazione al trattamento dei dati personali+
Dichiaro di aver letto l'informativa sulla privacy ed accetto le condizioni d'utilizzo del servizio.
Riempi il campo con il codice riportato nell'immagine*
Codice Captcha

Dettaglio immobile

Contratto Vendita
Rif N Meda 690
Prezzo € 690.000
Provincia Monza Brianza
Comune Meda
Indirizzo Via Dell'Artigianato
Superficie 1431 mq
Vani 4
Classe energetica Non indicata
Riscaldamento autonomo
Condizioni abitabile
Ascensore no

Consistenze

Descrizione Superficie Sup. comm.
Principali
Laboratorio - piano terra 1.138 Mq 1.138 Mqc
Ufficio - piano terra 106 Mq 106 Mqc
Esterno - piano terra 581 Mq 58 Mqc
Ufficio - piano interrato 129 Mq 129 Mqc
Totale 1.431 Mqc

Contattaci

Autorizzazione al trattamento dei dati personali+
Dichiaro di aver letto l'informativa sulla privacy ed accetto le condizioni d'utilizzo del servizio.
Riempi il campo con il codice riportato nell'immagine*
Codice Captcha

ArrigoniRE | Immobili solo per Imprenditori

via san zenone, 32
24030 BREMBATE DI SOPRA (BG)
C.F.: 03374840167
P.IVA: 03374840167
+39 035238583
Condividi Linkedin Whatsapp Stampa
Stampa