€ 650.000
EX FILIALE BANCARIA con magazzino

Rif: N DARFO carducci BANCA
  • 5 Foto
  • 2 Planimetrie
  • Mappa

Descrizione

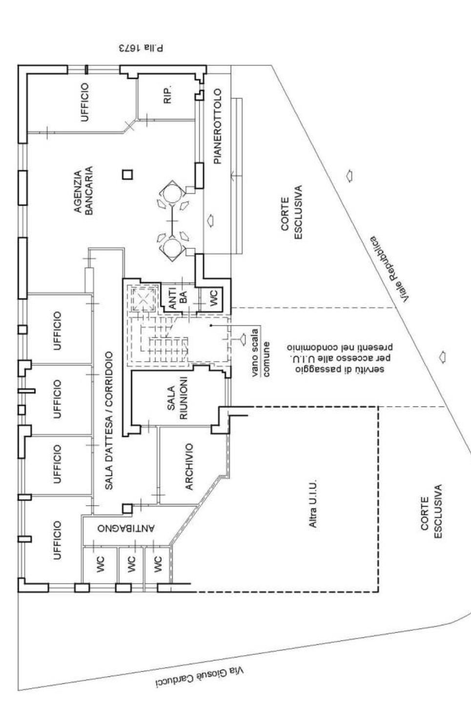
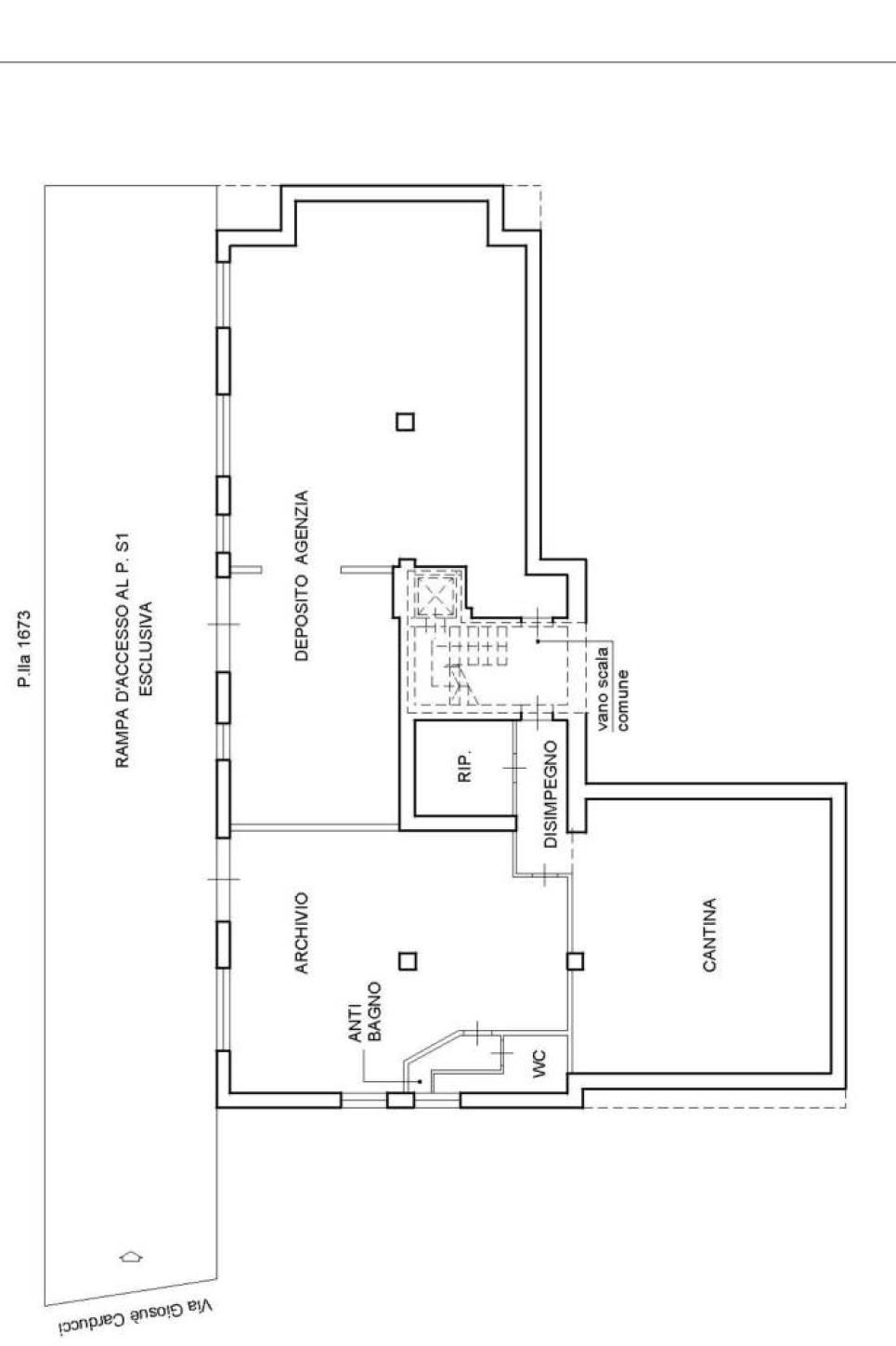
Vendiamo in via esclusiva ex filiale bancaria con magazzino, accesso diretto al seminterrato con rampa di accesso privata . Arrigoni 3478160766 ATTENZIONE: anteprima di vendita, le indicazioni delle superfici sono in fase di verifica, l'immobile è alienato da istituto bancario.

Richiedi maggiori informazioni

Autorizzazione al trattamento dei dati personali+
Dichiaro di aver letto l'informativa sulla privacy ed accetto le condizioni d'utilizzo del servizio.
Riempi il campo con il codice riportato nell'immagine*
Codice Captcha

Dettaglio immobile

Contratto Vendita
Rif N DARFO carducci BANCA
Prezzo € 650.000
Provincia Brescia
Comune Darfo Boario Terme
Indirizzo Viale Repubblica 19
Superficie 490 mq
Vani 5
Classe energetica Non indicata
Riscaldamento autonomo
Condizioni ottime condizioni
Spese condominiali € 2
Ascensore no

Consistenze

Descrizione Superficie Sup. comm.
Principali
Ufficio - piano terra 220 Mq 220 Mqc
Magazzino - piano interrato 270 Mq 270 Mqc
Totale 490 Mqc

Contattaci

Autorizzazione al trattamento dei dati personali+
Dichiaro di aver letto l'informativa sulla privacy ed accetto le condizioni d'utilizzo del servizio.
Riempi il campo con il codice riportato nell'immagine*
Codice Captcha

ArrigoniRE | Immobili solo per Imprenditori

via san zenone, 32
24030 BREMBATE DI SOPRA (BG)
C.F.: 03374840167
P.IVA: 03374840167
+39 035238583
Condividi Linkedin Whatsapp Stampa
Stampa